心动300秒|   返回主站|   日照站
上一张 下一张
  • 0
  • 1
  • 2
  • 3
  • 4
  • 5
小区名称:鑫江合院
户型:别墅
面积:181-320平米
装修风格:现代风格
分享到:
鑫江合院
别墅
建筑面积:181-320平米
现代风格
喜欢就找TA
设计师
邬忠斌
Detail design
设计细节
此方案整个空间通透,干净,整洁,没有做过多造型,整个入户玄关更方正大气,有满满的归家仪式感。客厅背景墙则用地砖上墙,使墙地视觉统一,搭配上灯带,也更有层次感。主卧室则采用无主灯设计,用不同的灯光营造卧室独有的氛围。

鑫江合院185㎡叠墅一层平面户型布局图.jpg

鑫江合院185㎡叠墅一层平面户型布局图


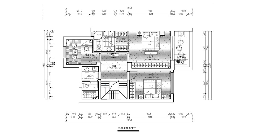
鑫江合院185㎡叠墅二层平面户型布局图.jpg

鑫江合院185㎡叠墅二层平面户型布局图


鑫江合院185㎡叠墅客厅现代风格装修案例效果图


鑫江合院185㎡叠墅客厅现代风格装修案例效果图


鑫江合院185㎡叠墅客餐厅现代风格装修案例效果图


鑫江合院185㎡叠墅门厅走廊现代风格装修案例效果图


鑫江合院185㎡叠墅餐厅现代风格装修案例效果图


鑫江合院185㎡叠墅卧室风格装修案例效果图

一个案例就是一个家的故事 · 值得你慢慢品味
One case is the story of a home
设计一个家就是设计容纳这个家的故事的空间。家里的每一个人用什么样的姿态生活是设计师构思的主线。
东方家园装饰集团总部美学馆
地址:青岛市市南区福州北路18号
服务热线:400-08-39800
东方家园大宅别墅中心(香港东方国际)
地址:青岛市市南区福州北路22号
服务热线:400-08-39800
东方家园老房改造创意中心
地址:青岛市市南区福州北路20号
服务热线:400-08-39800
东方家园黄岛分公司
地址:开发区漓江西路唐岛湾步行街
服务热线:400-08-39800
东方家园城阳分公司
地址:城阳区正阳中路口水街28号
服务热线:400-08-39800
东方家园胶州分公司
地址:胶州市北京路三里河文苑150号
服务热线:400-08-39800
东方家园日照分公司
地址:日照市济南路336号日照书城3F
服务热线:400-08-39800
东方家园焕新家轻装轻改
地址:市南区漳州一路8号
服务热线:400-08-39800

全国统一咨询热线
400-08-39800
Copyright©2021东方家园装饰集团
鲁ICP备10205373号