心动300秒|   返回主站|   日照站
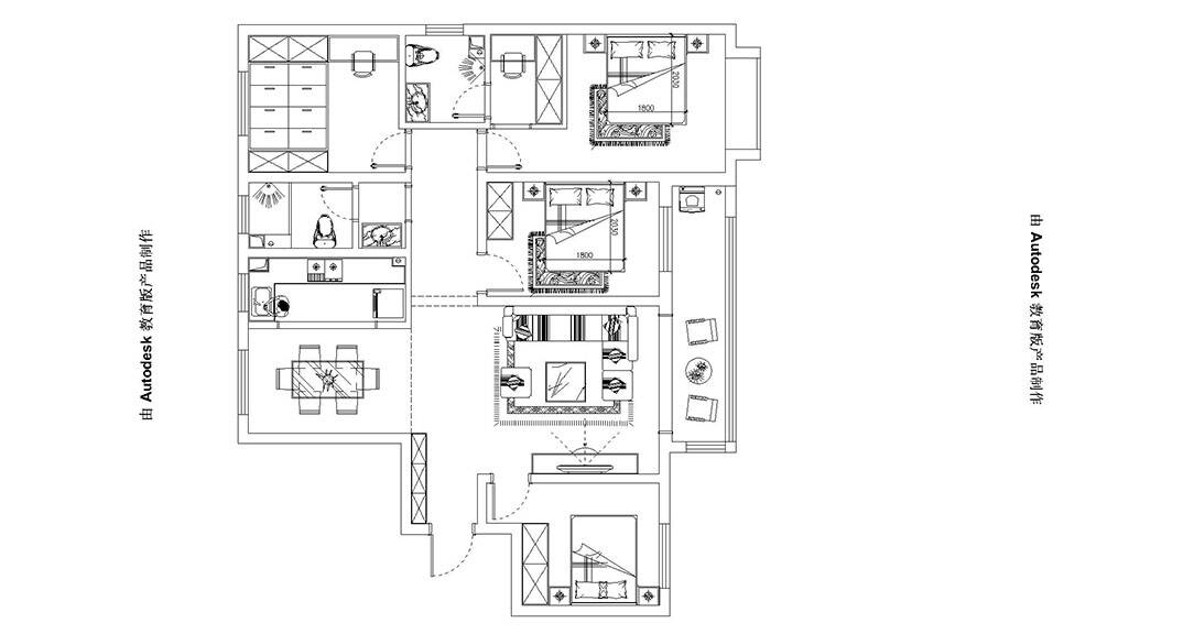
小区名称:金凤凰铭品
户型:四居室
面积:121-180平米
装修风格:欧式风格
分享到:
金凤凰铭品
四居室
建筑面积:121-180平米
欧式风格
喜欢就找TA
设计师
张巍龙
Detail design
设计细节

本案例定位于欧式风格,从空间主人的需求为出发点,不加复杂的造型和修饰,而是点到为止;大片的地毯设计和沙发的颜色相互呼应,充足的阳光融入让空间更显得温柔和浪漫。


金凤凰铭品 127㎡ 四室二厅一厨二卫 欧式风格客厅电视墙装修效果图

金凤凰铭品 127㎡ 四室二厅一厨二卫 欧式风格客厅电视墙装修效果图


金凤凰铭品 127㎡ 四室二厅一厨二卫 欧式风格客厅沙发装修效果图

金凤凰铭品 127㎡ 四室二厅一厨二卫 欧式风格客厅沙发装修效果图


金凤凰铭品 127㎡ 四室二厅一厨二卫 欧式风格客厅装修效果图

金凤凰铭品 127㎡ 四室二厅一厨二卫 欧式风格客厅装修效果图

一个案例就是一个家的故事 · 值得你慢慢品味
One case is the story of a home
设计一个家就是设计容纳这个家的故事的空间。家里的每一个人用什么样的姿态生活是设计师构思的主线。
东方家园装饰集团总部美学馆
地址:青岛市市南区福州北路18号
服务热线:400-08-39800
东方家园大宅别墅中心(香港东方国际)
地址:青岛市市南区福州北路22号
服务热线:400-08-39800
东方家园老房改造创意中心
地址:青岛市市南区福州北路20号
服务热线:400-08-39800
东方家园黄岛分公司
地址:开发区漓江西路唐岛湾步行街
服务热线:400-08-39800
东方家园城阳分公司
地址:城阳区正阳中路口水街28号
服务热线:400-08-39800
东方家园胶州分公司
地址:胶州市北京路三里河文苑150号
服务热线:400-08-39800
东方家园日照分公司
地址:日照市济南路336号日照书城3F
服务热线:400-08-39800
东方家园焕新家轻装轻改
地址:市南区漳州一路8号
服务热线:400-08-39800

全国统一咨询热线
400-08-39800
Copyright©2021东方家园装饰集团
鲁ICP备10205373号