心动300秒|   返回主站|   日照站
上一张 下一张
  • 0
  • 1
  • 2
  • 3
  • 4
  • 5
  • 6
  • 7
  • 8
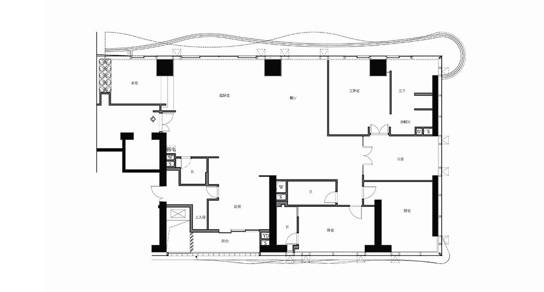
小区名称:隆海·海之韵
户型:四居室
面积:181-320平米
装修风格:现代风格
分享到:
隆海·海之韵
四居室
建筑面积:181-320平米
现代风格
喜欢就找TA
设计师
张巍龙
Detail design
设计细节
超越城市的品质生活,“我们家其实没有什么特殊要求,但是我们知道自己不想要一个普通而无趣的家,住在这里我们希望这个空间是舒服减压的,符合我们日常习惯,并且不需要为所谓好看的设计而别扭的住着”。


隆海海之韵 260㎡ 四室两厅 现代风格客厅效果图

隆海海之韵 260㎡ 四室两厅 现代风格客厅效果图


隆海海之韵 260㎡ 四室两厅 现代风格客厅效果图

隆海海之韵 260㎡ 四室两厅 现代风格客厅效果图

隆海海之韵 260㎡ 四室两厅 现代风格餐厅效果图

隆海海之韵 260㎡ 四室两厅 现代风格餐厅效果图


隆海海之韵 260㎡ 四室两厅 现代风格书房效果图

隆海海之韵 260㎡ 四室两厅 现代风格书房效果图


隆海海之韵 260㎡ 四室两厅 现代风格客厅效果图

隆海海之韵 260㎡ 四室两厅 现代风格卧室效果图


隆海海之韵 260㎡ 四室两厅 现代风格客厅效果图

隆海海之韵 260㎡ 四室两厅 现代风格卧室效果图


隆海海之韵 260㎡ 四室两厅 现代风格浴室&卫生间效果图

隆海海之韵 260㎡ 四室两厅 现代风格浴室&卫生间效果图

一个案例就是一个家的故事 · 值得你慢慢品味
One case is the story of a home
设计一个家就是设计容纳这个家的故事的空间。家里的每一个人用什么样的姿态生活是设计师构思的主线。
东方家园装饰集团总部美学馆
地址:青岛市市南区福州北路18号
服务热线:400-08-39800
东方家园大宅别墅中心(香港东方国际)
地址:青岛市市南区福州北路22号
服务热线:400-08-39800
东方家园老房改造创意中心
地址:青岛市市南区福州北路20号
服务热线:400-08-39800
东方家园黄岛分公司
地址:开发区漓江西路唐岛湾步行街
服务热线:400-08-39800
东方家园城阳分公司
地址:城阳区正阳中路口水街28号
服务热线:400-08-39800
东方家园胶州分公司
地址:胶州市北京路三里河文苑150号
服务热线:400-08-39800
东方家园日照分公司
地址:日照市济南路336号日照书城3F
服务热线:400-08-39800
东方家园焕新家轻装轻改
地址:市南区漳州一路8号
服务热线:400-08-39800

全国统一咨询热线
400-08-39800
Copyright©2021东方家园装饰集团
鲁ICP备10205373号