心动300秒|   返回主站|   日照站
上一张 下一张
  • 0
  • 1
  • 2
  • 3
  • 4
  • 5
小区名称:凤凰郡
户型:三居室
面积:120平米以下
装修风格:北欧风格
分享到:
凤凰郡
三居室
建筑面积:120平米以下
北欧风格
喜欢就找TA
设计师
林贤
Detail design
设计细节
房子承载了我们对生活的情感,才能成为舒适精致的家,我们给本案取名“天使的铃铛”,如同铃兰仙子心地温柔而善良,心中充满爱,缔造出温暖舒适的家居环境。当下年轻人力捧的北欧,一分一寸都是精致极简,本案从实用性与审美角度入手,对每一个细节都几近苛求.客厅从色彩、材质入手,多元化演绎北欧原木风情,让居者深陷高级、精致且浪漫的家居环境里,静享悠闲与自在。

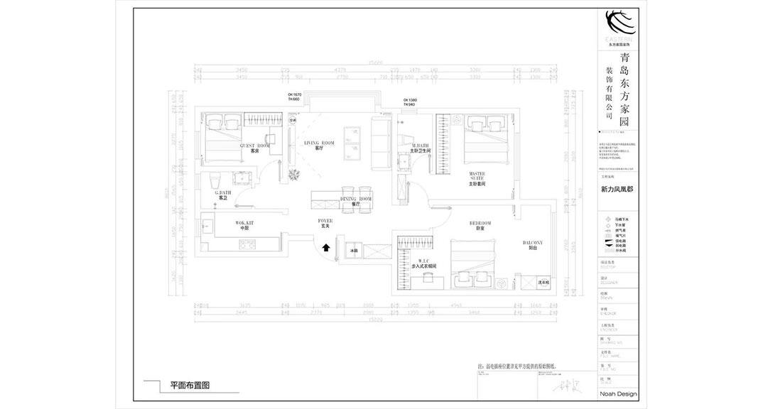
凤凰郡115㎡三室两厅户型平面布局图


凤凰郡115㎡三室两厅客厅电视极简北欧风格装修案例效果图


凤凰郡115㎡三室两厅客厅沙发极简北欧风格装修案例效果图


凤凰郡115㎡三室两厅客餐厅极简北欧风格装修案例效果图


凤凰郡115㎡三室两厅餐厅极简北欧风格装修案例效果图


凤凰郡115㎡三室两厅卧室极简北欧风格装修案例效果图


凤凰郡115㎡三室两厅卫生间极简北欧风格装修案例效果图

一个案例就是一个家的故事 · 值得你慢慢品味
One case is the story of a home
设计一个家就是设计容纳这个家的故事的空间。家里的每一个人用什么样的姿态生活是设计师构思的主线。
东方家园装饰集团总部美学馆
地址:青岛市市南区福州北路18号
服务热线:400-08-39800
东方家园大宅别墅中心(香港东方国际)
地址:青岛市市南区福州北路22号
服务热线:400-08-39800
东方家园老房改造创意中心
地址:青岛市市南区福州北路20号
服务热线:400-08-39800
东方家园黄岛分公司
地址:开发区漓江西路唐岛湾步行街
服务热线:400-08-39800
东方家园城阳分公司
地址:城阳区正阳中路口水街28号
服务热线:400-08-39800
东方家园胶州分公司
地址:胶州市北京路三里河文苑150号
服务热线:400-08-39800
东方家园日照分公司
地址:日照市济南路336号日照书城3F
服务热线:400-08-39800
东方家园焕新家轻装轻改
地址:市南区漳州一路8号
服务热线:400-08-39800

全国统一咨询热线
400-08-39800
Copyright©2021东方家园装饰集团
鲁ICP备10205373号