心动300秒|   返回主站|   日照站
上一张 下一张
  • 0
  • 1
  • 2
  • 3
  • 4
小区名称:千禧国际村
户型:别墅
面积:181-320平米
装修风格:新中式风格
分享到:
千禧国际村
别墅
建筑面积:181-320平米
新中式风格
喜欢就找TA
设计师
赵昌宁
Detail design
设计细节
1、现代中式风格并不是中式风格和现代风格简单的堆砌。而是一种全新的装修风格, 2、中国传统的室内设计融合了庄重与典雅双重气质,现代中式风格更多的利用后现代手法,把传统的结构形式通过重新设计组合,以另一种民族特色的标志符号出现。 3、所谓万变不离其宗,任何一种风格演绎的都是特定的文化背景做支撑,营造的是极富中国浪漫情调的生活空间,如红木.青花瓷.紫砂壶以及一些红木工艺品等,都体现了浓郁的东方之美,这种简约主义风格渗透了中国文化,它不仅永不落时,而且时间越久越散,发出迷人的东方魅力。

undefined

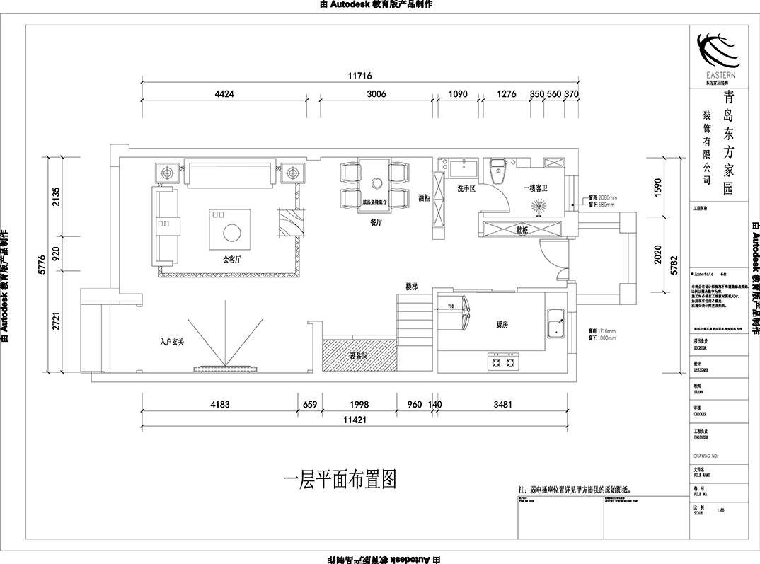
千禧国际村240m²联排别墅一层户型图


undefined

千禧国际村240m²联排别墅二层户型图


undefined

千禧国际村240m²联排别墅客厅沙发新中式风格装修案例


undefined

千禧国际村240m²联排别墅餐厅新中式风格装修案例


undefined

千禧国际村240m²联排别墅客厅新中式风格装修案例


undefined

千禧国际村240m²联排别墅餐厅新中式风格装修案例

一个案例就是一个家的故事 · 值得你慢慢品味
One case is the story of a home
设计一个家就是设计容纳这个家的故事的空间。家里的每一个人用什么样的姿态生活是设计师构思的主线。
东方家园装饰集团总部美学馆
地址:青岛市市南区福州北路18号
服务热线:400-08-39800
东方家园大宅别墅中心(香港东方国际)
地址:青岛市市南区福州北路22号
服务热线:400-08-39800
东方家园老房改造创意中心
地址:青岛市市南区福州北路20号
服务热线:400-08-39800
东方家园黄岛分公司
地址:开发区漓江西路唐岛湾步行街
服务热线:400-08-39800
东方家园城阳分公司
地址:城阳区正阳中路口水街28号
服务热线:400-08-39800
东方家园胶州分公司
地址:胶州市北京路三里河文苑150号
服务热线:400-08-39800
东方家园日照分公司
地址:日照市济南路336号日照书城3F
服务热线:400-08-39800
东方家园焕新家轻装轻改
地址:市南区漳州一路8号
服务热线:400-08-39800

全国统一咨询热线
400-08-39800
Copyright©2021东方家园装饰集团
鲁ICP备10205373号